![]() |
ApplicationDesigned for Explosive Atmospheres Zone 1 and Zone 2 Designed for Combustible Dust Zone 21 and Zone 22 Designed for IIA, IIB and IIC Groups Explosive Atmospheres Designed for Temperature Classifications T1~T6/T4 Designed for the Damp Sites with High Protection Level Demand Designed for Explosive Hazardous Locations Such as Oil Refinery, Storage, Chemical, Pharmaceuticals, Military Industries, Etc. ATEX Number: LCIE 16 ATEX 3044 X IECEx Number: LCIE 15.0068X
|
Ordering References
Only One Tube Works Under Emergency Conditions;
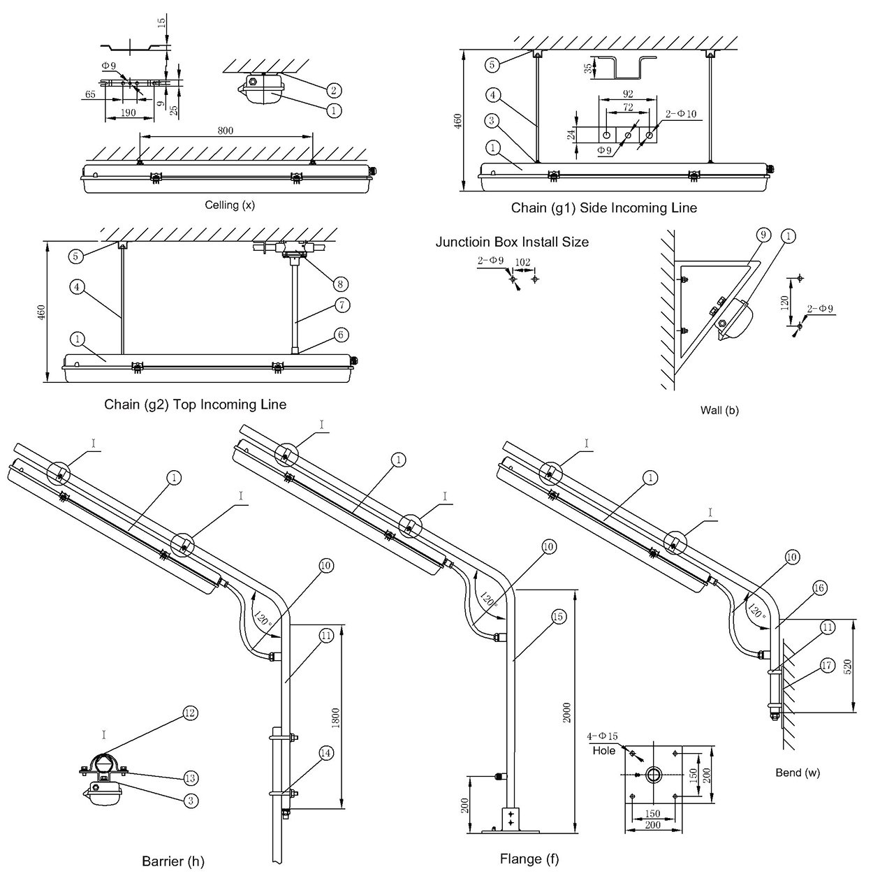
For Example: If Need Pendant Type BYD703 Explosion Proof Corrosion Resistance Polyester Fluorescent Light Fitting 2X28W Tubes, Side Inlet, with Emergency Unit, the Model Shall Be: BYD703-2X28g1J.
Remarks: Tube Can Choose Brand of PHILPS, OSRAM or Other Tube With Equivalent Specifications.
Selection Table

Technical Parameters
Ex-Mark: II 2G Ex d e IIC T4 Gb / II 2D Ex tb IIIC T80℃Db
Ingress Protection: IP66
Ambient Temperature: -25℃≤Ta≤+55℃
Used for Areas: Zone 1, Zone2, Zone21, Zone22
Rated working voltage: AC 100V~240V,50/60Hz
Lamp Holder: G5 with T5 Tube / G13 with T8 Tube
Ballast: Explosion Proof Electronic Ballast (Instant-Start);
Rated Sectional Area of Connecting Terminal: 4mm2
Inlet Thread: 3-M25 X 1.5
Suggest Connection Tightening Torque: 0.5Nm~1Nm
Explosion Proof Limit Switch: AC 5A 125V / AC 3A 250V
Parameters of Emergency Fluorescent Fitting
a. Emergency Controller and Electronic Ballast Design Together
b. Explosion Proof Battery Capacity / Voltage: 6Ah/7.2V
c. Refer to the Table 1 for Normal Fitting Power, Emergency Fitting Power
d. Emergency Fitting Time: ≥120min
e. Emergency Starting Time: ≤0.1s
f. Emergency Charging Time: ≤24h
Features
Enclosure is Molded of SMC Glass Fiber Reinforced Polyester (GRP) with Benefits of High Strength, Impact Resistance and Corrosion Resistance;
Lamp Shade is Injected of Polycarbonate with Benefits F High Light Transmittance and Impact Resistance;
Light Fitting Adopts Labyrinth Seal Structure with the Performance of Strong Water Resistance and Dust Resistance;
Famous Brand Fluorescent Tube with Long Service Life and High Light Efficiency;
Exclusive Explosion Proof Ballast According to the Tube Type;
Adopt Specified Explosion Proof Lamp Holder;
Light Fitting are of Mechanical Interlock Hold-Down Gear and Automatic Power Failure. When Open, It Cuts Off the Lighting and Emergency Power Supply. When Close, Lock the Seal an Automatic Transmission.
With Convenient Locking Structure, Opened or Closed the Transparent Cover Can be Quickly According to Indication;
Lighting Fixture with Emergency Unit Will Automatically Shift to Emergency Lighting Status When Normal Power is Failed;
Special Designed over Charging and over Discharging Circuit Inside Emergency Unit;
Steel Pipe or Cable Wiring.


